HOME | IMPRESSUM | DATENSCHUTZ | AGB

unsere Öffnungszeiten:

Montag - Freitag
8.00 - 12.00 / 13.00 - 17.00 Uhr 

Nov. - März (Winter)
jeden Samstag
von 09.00 - 12.00 Uhr

März - Nov. (Sommer)
am 2. und 4. Samstag im Monat
von 09.00 - 12.00 Uhr




 
Sie befinden sich hier: Produkte / Neumaschinen / Altendorf WA 6
AnfrageRückrufzurück

Altendorf WA 6

Artikel-Nr. 1256431
 
Maschineninfo

Was tun, wenn man wenig Raum hat, dazu ein begrenztes Budget, und trotzdem auf Qualität nicht verzichten will? Wenn diese Ansprüche auf eine Formatkreissäge zutreffen sollen, gibt Altendorf die Antwort: Altendorf WA 6.

Die WA 6 ist die kleinste Altendorf, die es gibt. Und trotz ihrer kleineren Abmessungen besticht sie durch große Leistungen: Mit ihrer starken Ausstattung trumpft sie selbst auf kleinstem Raum groß auf. Hervorragend die Schnittqualität und die Flexibilität im täglichen Einsatz. Und ebenso hervorragend ist der Preis: Wo gibt es da noch Bedenken?

Das Multihohlkammer-System.

Das Multihohlkammer-System für höchste Verwindungssteifigkeit des Doppelrollwagens.

Der Parallelanschlag.

Der Parallelanschlag, präzise und leichtgängig.

Der Winkel-Gehrungsanschlag.

Winkel-Gehrungsanschlag: Für präzises Schneiden von Winkeln und Gehrungen in einer Funktion. Ablängbereich: 95 – 2 600 mm. Schwenkwinkel stufenlos einstellbar von 0 – 49°.

Die manuelle Schwenkverstellung.

Manuell per Handrad, Schwenkwinkel wird über Skala angezeigt. Von 0 – 45°.

Die manuelle Höhenverstellung.

Manuell per Handrad.

Der Vorritzer.

Separater Vorritzermotor mit 0,37 kW und Ein/Aus-Schalter.

Die Schutzhaube.

Schutzhaube mit Absaugschlauch oberhalb des Hauptsägeblatts. CE-Ausführung: Absaugschlauch in Grundausstattung enthalten; non-CE-Ausführung: optional.

Der Doppelrollwagen.

Der bewährte Altendorf Doppelrollwagen mit Stahlführung.
Auf Wunsch ist die WA 6 auch mit 1 600-mm-Doppelrollwagen lieferbar.

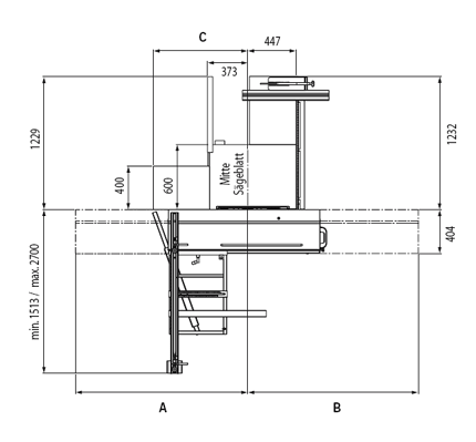
Technische Daten:

Wagenlänge
1 600 / 2000 / 2600 mm
 
Sägeblattdurchmesser
250 - 315 mm / 350*
 
Schnitthöhen bei 90°
max. 87 mm / 105*
 
Schnitthöhe bei 45°
max. 60 mm / 73*
 
Gewicht
450kg
 
Tischhöhe
910 mm
 
 
 
AnfrageRückrufzurück